Utrecht University signs for a large solar park in Bunnik

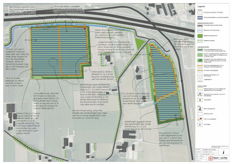
Integration in the landscape (version 1.4, see ZonneparkA12Bunnik.nl)
Integration in the landscape (version 1.4, see ZonneparkA12Bunnik.nl)
Integration in the landscape (version 1.4, see ZonneparkA12Bunnik.nl) Utrecht University (UU) wants to be CO2 neutral by 2030. Making the university more sustainable is partly possible with solar energy. Most buildings are therefore fitted with solar panels. To make big steps, larger park arrangements of solar panels are also needed. These do not physically fit in the Utrecht Science Park (USP). Therefore, UU signed an agreement with solar park developer IX Zon concerning the rights to build 50% of a large solar park in Bunnik and operate it for 30 years. UU's energy supply accounts for 65% of the university's total CO2 footprint.
account creation

TO READ THIS ARTICLE, CREATE YOUR ACCOUNT

And extend your reading, free of charge and with no commitment.



Your Benefits

  • Access to all content
  • Receive newsmails for news and jobs
  • Post ads

myScience